360 000 €
5 132 € / m²

Appartement T3 de 70,15m2 en nue propriété

Appartement T3 de 70,15m2 en nue propriété

92400 Courbevoie
3 pièces 70.15 m2
Référence : 92COURISELEPAR738
360 000 €
5 132 € / m²

Conditions de vente

360 000 €

Taxe foncière
Non renseignée

Informations

2 chambres
Étage : 4
1 salle d'eau
1 WC
Bâtiment de : 10 étages
Ascenseur
Balcon
Local à vélo
Mono-propriété
Construit 2021

Dernier ravalement
2021
Dernière réfection toiture
2021

Description

Proche de La Défense et de Paris, Courbevoie est une commune dynamique et moderne. Ce bien est idéalement situé à moins de 10 minutes à pied de la gare de Bécon-les-Bruyères.

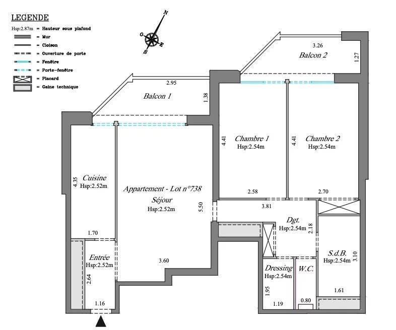
Ce bien se compose :

- d'une entrée,
- d'un beau séjour de 21m2,
- d'une cuisine séparée de plus 7m2
- de deux chambres,
- d'un dressing,
- d'une salle de bains

2 balcons donnent de la luminosité à cet appartement.
Il est vendu avec place de parking et cave.
Ce bien en nue propriété a une durée d'usufruit de 12 ans.

Pour plus d'information, merci de bien vouloir nous contacter directement.
Mis à jour le 30/03/2026

Relevés techniques

Traversant
Non
Vitrage
Double

DPE : 107
A
B
C
D
E
F
G
GES : 7
A
B
C
D
E
F
G
Diagnostic réalisé le: 16/10/2025

Production eau chaude
Individuel Gaz

Production chauffage
Individuel Gaz


Les informations sur les risques auxquels ce bien est exposé sont disponibles sur le site Géorisques : www.georisques.gouv.fr

État et prestations

État général
Excellent

Cuisine
Prestations
État
Salles de bain
Prestations
État
Sol(s)
Prestations
État
Fenêtres
Prestations
État

Détails des surfaces

Espace
Carrez
Au sol
Entrée
3.05 m²
0 m²

Séjour
20.9 m²
0 m²

Chambre 1
11.4 m²
0 m²

Chambre 2
12.75 m²
0 m²

Dégagement
5.85 m²
0 m²

Cuisine
7.35 m²
0 m²

Dressing
2.3 m²
0 m²

Salle de bain
5 m²
0 m²

Balcon
0 m²
0 m²

Balcon
0 m²
0 m²

WC
1.55 m²
0 m²

Total
70.15 m²
0.00 m²