590 000 €
5 983 € / m²

Appartement T4 duplex à la Rochelle

Appartement T4 duplex à la Rochelle

17000 La Rochelle
4 pièces 98.62 m2
Référence : 17ROCHEEDEOCARC205
590 000 €
5 983 € / m²

Conditions de vente

590 000 €

Taxe foncière
Non renseignée

Informations

3 chambres
Étage : 2
2 salles d'eau
2 douches
2 WCs
Bâtiment de : 5 étages
Terrasse
Ascenseur
2 Box (garage fermé)s
Mono-propriété

Description

Idéalement placé, au coeur de la Rochelle.

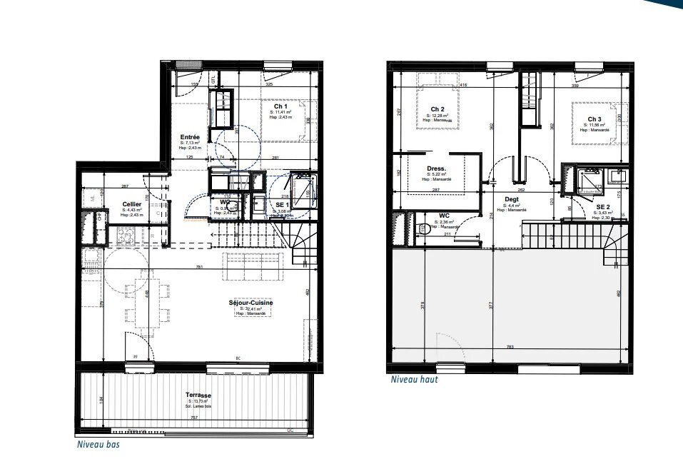
Cet appartement T4 en duplex, se compose :

Au niveau Bas :

- d'une entrée,
- d'un séjour-cuisine de plus de 32m2,
- d'une salle de douche,
- de toilettes séparées
- d'une chambre,
- d'un cellier,
- d'une terrasse de plus de 13m2

A l'étage :
- 2 chambres (dont une avec dressing)
- une salle de douche,
- toilettes séparées,

Un double box est à rajouter au prix affiché.

Pour plus d'information, merci de nous contacter directement
Mis à jour le 27/03/2026

Relevés techniques

Traversant
Non
Vitrage
Double

DPE : 107
A
B
C
D
E
F
G
GES : 7
A
B
C
D
E
F
G
Diagnostic réalisé le: 06/03/2026

Production eau chaude
Individuel Gaz

Production chauffage
Individuel Gaz


Les informations sur les risques auxquels ce bien est exposé sont disponibles sur le site Géorisques : www.georisques.gouv.fr

État et prestations

État général
Excellent

Cuisine
Prestations
État
Salles de bain
Prestations
État
Sol(s)
Prestations
État
Fenêtres
Prestations
État

Détails des surfaces

Espace
Carrez
Au sol
Entrée
7.13 m²
0 m²

Séjour / cuisine
32.41 m²
0 m²

Chambre 1
11.41 m²
0 m²

Chambre 2
12.28 m²
0 m²

Chambre 3
11.56 m²
0 m²

Salle de douche
3.08 m²
0 m²

Salle de douche
3.43 m²
0 m²

Cellier
4.43 m²
0 m²

Dressing
5.22 m²
0 m²

Dégagement
4.4 m²
0 m²

WC
0.91 m²
0 m²

WC
2.36 m²
0 m²

Terrasse
0 m²
13.73 m²

Total
98.62 m²
13.73 m²