180 000 €
5 731 € / m²

À vendre T2 31,41 m² – Romans-sur-Isère (centre)

À vendre T2 31,41 m² – Romans-sur-Isère (centre)

26100 Romans-sur-Isère
2 pièces 31.41 m2
Référence : 26ROMISBMPSTJU106
180 000 €
5 731 € / m²

Conditions de vente

180 000 €

Taxe foncière
Non renseignée

Informations

1 chambre
Étage : 1
1 salle d'eau
1 douche
1 WC
Bâtiment de : 3 étages
Ascenseur
Local à vélo
Mono-propriété

Description

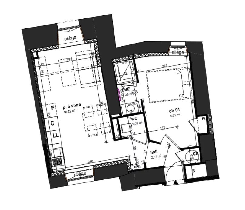
Au sein de Le Saint-Just, réhabilitation d’un ancien couvent, ce T2 en R+1 offre une distribution optimisée : séjour/cuisine 16,22 m², chambre, salle d’eau, WC séparé.

La résidence propose un cadre agréable en cœur de ville, proche des commodités et lieux culturels.

Investissement : Eligible déficit foncier Malraux de Normandie Bailleur privé

Simulation fiscale certifiés sur chaque bien

Pour plus d'information, merci de nous contacter directement.
Mis à jour le 27/03/2026

Relevés techniques

Traversant
Non
Vitrage
Double

DPE : 111
A
B
C
D
E
F
G
GES : 12
A
B
C
D
E
F
G
Diagnostic réalisé le: 05/02/2026

Production eau chaude
Individuel Gaz

Production chauffage
Individuel Gaz


Les informations sur les risques auxquels ce bien est exposé sont disponibles sur le site Géorisques : www.georisques.gouv.fr

État et prestations

État général
Excellent

Cuisine
Prestations
État
Salles de bain
Prestations
État
Sol(s)
Prestations
État
Fenêtres
Prestations
État

Détails des surfaces

Espace
Carrez
Au sol
Entrée
2.67 m²
0 m²

Séjour / cuisine
16.22 m²
0 m²

Chambre 1
9.21 m²
0 m²

Salle de douche
2.28 m²
0 m²

WC
1.03 m²
0 m²

Total
31.41 m²
0.00 m²